1. 草莓视频色版APP,草莓视频官网在线观看,草莓视频污污下载成人,草莓视频在线观看大全

    梭式窯爐節能和溫差小及周期短將會取代傳統窯爐

     新聞資訊     |      2021-08-11

           梭式窯爐的節能、溫差小和燒成周期短是優於傳統窯爐的重要指標,也是梭式窯有別於加熱爐、熱處理爐的重要方麵。目前,國內常用的梭式窯燒成室容積,小的隻有幾個立方米,大到成百上千立方米的,沒有一個固定的係列,完全根據用戶需要確定。本章主要介紹的是大容積的梭式窯的結構特性和設計、施工要求。

    梭式窯主視圖.jpg

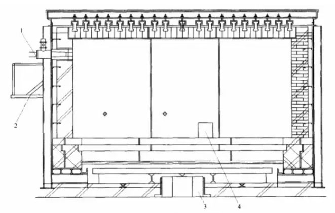
           大型梭式窯爐大致由幾部分組成,包括窯爐鋼結構、窯體耐火材料、窯門啟閉係統、窯車、進出車係統、窯爐基礎(含內外軌道基礎)和煙道、燃燒係統、排煙係統、控製係統等。

           梭式窯的窯體的耐火材料結構通常由以下幾部分構成:車台麵以上和以下窯牆砌體、窯門、窯頂砌體以及窯車台麵砌體。通常車台麵以下窯牆由重質耐火磚砌築,其餘三部分均由抗熱震性好、導熱和膨脹係數小的輕質耐火材料砌築。根據使用溫度的不同,采用不同的高強度輕質磚加隔熱纖維材料或采用多晶莫來石等複合耐火纖維模塊構成窯的燒成空間。

    梭式窯側視圖.jpg

           窯牆、窯頂耐火材料是通過特殊的結構形式固定在窯體鋼結構上的。因此,窯體鋼結構必須有足夠的強度和剛度作為支撐。通常,鋼結構根據窯爐高度不同,由不同規格的型鋼(多用工字鋼或方鋼管)作為立柱,不同厚度的鋼扳(δ=4~6mm)作為牆板,根據窯爐寬度選定不同規格的型鋼作為橫梁。同時梭式窯大都設有操作平台。

           梭式窯作為一種先進的工業窯爐設備,在我國機械行業的電工陶瓷、砂輪廠;建材行業的衛生陶瓷廠;環保和耐火材料等行業的工廠已經得到廣泛應用。它以能耗低、溫度均勻、燒成周期短、自動化程度高、生產靈活等特點,使上述行業的燒成工藝發生了變革性的進步,產生了很大的技術經濟效益,正在逐步取代和淘汰傳統的倒焰窯甚至隧道窯。隨著我國科技水平的不斷進步,相關產業的不斷發展,更加節能、自動化程度更高的梭式窯將會得到越來越廣泛地應用。

           梭式窯爐結構形式近似於台車式加熱爐、熱處理爐、在陶瓷和耐火材料行業稱之為梭式窯,顧名思義,窯車的運動軌跡就像一個“梭子”一樣從窯內拉出、推進。也有稱作抽屜窯,也足取窯車推進拉出之意。由於梭式窯是間歇式燒成設備,每個燒成周期都經過加熱和冷卻過程,因此,窯體和窯車的蓄熱、散熱量大小直接影響窯爐的熱效率。梭式窯多采用輕質耐火材料,以較大限度地減少蓄熱和散熱損失;同時配置調溫高速燒嘴,以避免火焰溫度與待燒製品之間溫差過大,而造成的製品缺陷.並通過高速氣流在窯內的擾動和卷吸作用,增加對流換熱效率;基本采用平頂結構,使窯頂與窯牆相互獨立,既能自由伸縮,為窯體輕型化提供了條件,同時又充分利用了窯內空間;棱式窯采用下排煙的形式,為均勻窯內溫度和簡化車間地麵設施提供了有利條件。

    梭式窯耐火材料一覽.jpg

           以電瓷行業梭式窯為例,其窯牆耐火材料一般是由輕質莫來石磚(300~348mm )+矽酸鋁耐火纖維(80~100mm)或輕質莫來石磚(230mm)+輕質高鋁磚(114mm)+矽酸鋁耐火纖維(80~100mm)這樣兩種輕質磚加隔熱層結構組成;極少數的電瓷梭式窯也采用了全纖維耐火材料的窯牆、窯頂結構。目前耐火纖維的產品在經過反複加熱冷卻以及受高速氣流衝刷後,存在著收縮大、易老化和極易發生纖維粉化剝落現象。而對於電瓷、陶瓷產品燒成的棱式窯,出現了這種情況就會造成產品外觀和性能上的缺陷,這完全不同於金屬加熱或熱處理爐的加熱對象。一旦出現纖維粉化剝落的情況,就很難根除,因此,在對產品外觀要求比較嚴格的陶瓷、電瓷梭式窯窯體耐火材料的選擇時,都十分謹慎。輕質磚加耐火纖維的窯牆是以“浮錨”結構的形式,將耐火磚與窯牆鋼板間進行連接,作為窯牆的穩固措施。

           棱式窯的窯牆、窯頂和窯門,用輕質莫來石磚砌築時,常采用氣硬性耐火泥漿來砌築。這種泥漿要求有良好的砌築性能,既能保證合適的施工時問(一般要求在90~120s),又要求在施工一段時間之後能開始硬化,產生良好的常溫(或低溫)粘接強度(要求可以達到0.5MPa以上);同時有能滿足在1000~1600℃溫度範圍內使用的多種規格。

           用於梭式窯的輕質耐火磚,要求有良好的熱穩定性,安全使用溫度下的重燒線變化率小,熱導率達到性能指標要求。可用於電瓷、陶瓷、耐火材料等行業常用輕質隔熱耐火磚的性能指標。

           在兩側窯牆上每條火道 的位置,上下交錯布置了若幹支調溫高速燒嘴,高速噴出的焰氣作為梭式窯的熱量供應源和擾動卷吸作用的動力源。梭式窯的燒嘴布置形式與泛指的工業爐燒嘴大都布置在爐牆下部是有明顯區別的,梭式窯窯內更強調氣流在垂直斷麵上的上下循環和水平麵上的循環的共存,這對均勻窯內溫度是十分必要的。

           常用的大型梭式窯窯門由鋼結構和輕質耐火材料組成,耐火材料一般由輕質莫來石磚(230~270mm)+矽酸鋁耐火纖維(30~80mm)構成,重量大都在3—6t。其開閉機構形式有回轉式、平移式和升降式3種。窯門本體由吊梁懸吊,按不同開閉形式移動。目前大部分梭式窯窯門開閉均采用電動機構驅動,極少的廠家還采用人工操作、無論哪種關閉形式,關鍵點在於窯門與窯體的密封。

           梭式窯爐的窯車及台麵砌體組成梭式窯的窯底,與窯牆、窯頂和窯門組成燒成空間。窯車由鋼架、車輪和砌在上麵的耐火材料組成(見圖20-4)。車台麵耐火材料的結構形式和材質選擇時,既要考慮其承載能力和加強隔熱效果,又要盡量減少窯車砌體的蓄熱散熱損失。輕質窯車的推廣應用為降低產品熱耗提供了有效途徑。

           除個別從國外引進梭式窯采用上排煙(主要是由於建窯地點地下水位太高的原因)外,國內絕大部分大型梭式窯均采用下排煙。

           根據氣體垂直分流法則,在窯內的高溫氣流從上向下流動是保證窯內水平方向溫度均勻的重要條件。梭式窯在垂直斷麵的上下均布置高速燒嘴,加上下排煙,這就是棱式窯溫度均勻,可以實現快速燒成的重要的結構特點。這在機械行業的熱處理爐等爐子上得到了驗證。

           由於煙道布置在窯基礎底板下部,建窯地點地下水位較高的梭式窯煙道,多做成防水煙道。也有的窯為了避免地下水對煙道的影響,做成分散多條的淺煙道。在煙道內放置換熱器的煙道,其較深處的側邊,還設有滲井作為煙道防水的輔助設施。

           窯爐基礎由C-15以上標號的混凝土搗製,根據土質和地耐力情況的差異,多做成鋼筋混凝土結構。窯車軌道安裝在窯爐混凝土基礎之上。鑒於梭式窯的荷載狀況,通常選用22kg/m以上規格輕軌。

    網站地圖